Rumah Strategis 3 KT Luas Tanah 72m² Di Ciputat, Tangerang Selatan

sumber : https://www.99.co/id/properti/rumah-2-lt-shm-dekat-sekolah-dan-mall-di-tangsel-sudah-renov-j18023-1006197304

Dijual rumah istimewa dengan alamat di Ciputat, Tangerang Selatan seharga 1.02 M. Spesifikasi rumah sebagai berikut :

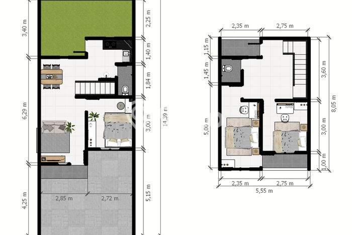
  • Luas Bangunan : 90
  • Luas Tanah : 72
  • Jumlah Kamar Tidur : 3
  • Jumlah Kamar Mandi : 2

Tips Cari Rumah KPR
Cara Membeli Rumah Seken Menggunakan KPR
Cara Mendesain Rumah Impian Sendiri

Investasikan hunian impian di Ciputat, Tangerang Selatan, Tangerang Selatan. Rumah 2 Lt SHM dekat Sekolah dan Mall di Tangsel Sudah Renov J18023 dibangun di atas area 72m² dengan total konstruksi 90m², terdiri dari 3 kamar tidur dan 2 kamar mandi.

Properti ini memiliki sertifikat (SHM) dan beragam fasilitas (Keamanan, Taman) dengan furnitur berkondisi (). Hubungi kami sekarang untuk detail lebih lengkap.

------------------------------------------------------------

Perumahan Pamulang Elok

*Bisa Nego
*Menerima Cash
*Bisa Dibantu KPR
*Menyediakan full furniture (sesuai permintaan customer)

Rumah siap huni lokasi strategis, dekat dengan fasilitas pendidikan, kesehatan, pusat perbelanjaan, dan akses transportasi.

SHM
LT 72
LB 90
2 Lantai
3 Kamar Tidur
2 Kamar Mandi
Listrik 2200 VA
Sumber Air PDAM

Fasilitas Sekitar Hunian:
6 menit ke Sekolah Menengah Atas Muhammadiyah 25 Pamulang
8 menit ke SMP Negeri 18 Depok
15 menit ke Sekolah Menengah Atas (SMA) Negeri 10 Depok
20 menit ke Sekolah Dasar Negeri Meruyung
25 menit ke SD Negeri Parung Bingung 2
30 menit ke SD Negeri Limo 1
30 menit ke SD ISLAM SERAMBI
30 menit ke SMP Yadika 12 Depok

5 menit ke Pasar Reni Jaya Lama Depok
10 menit ke The Park Sawangan
10 menit ke PASAR PAGI PONDOK BENDA

4 menit ke Puskesmas Bojongsari
7 menit ke Puskesmas Pamulang
9 menit ke RSIA Permata Sarana Husada
10 menit ke RS.Permata Pamulang
10 menit ke Puskesmas Pamulang Timur
15 menit ke PUSKESMAS BAKTI JAYA TANGSEL

10 menit ke Terminal Pondok Cabe
15 menit ke Gerbang Tol Pamulang
25 menit ke Stasiun Sudimara
25 menit ke Stasiun Rawa Buntu
25 menit ke Stasiun Jurang Mangu
30 menit ke Gerbang Tol Sawangan 4
30 menit ke Gerbang Tol Serpong 1
30 menit ke Gerbang Tol Serpong 2

Hubungi kami untuk konsultasi dan survei rumah impianmu!

Analisa rating properti oleh finding.id

Rata-rata (satu area) Nilai properti ini Rating
Harga per m2 Rp. 12,70 jt Rp. 6,30 jt
Kelengkapan data
Kelengkapan gambar/foto
Nama Fasilitas Jarak (km) Rating
Fasilitas transportasi Stasiun Jurang Mangu ~3 km
Pusat perbelanjaan atau Pasar Bintaro Jaya Xchange Mall ~3 km
Fasilitas pendidikan Sekolah Dasar Alam Bintaro ~4 km
Fasilitas kesehatan Ichsan Medical Centre Hospital Bintaro ~3 km

Harga/m2

(rata-rata Rp. 12,70 jt)
Rp. 6,30 jt

Kelengkapan Data

Kelengkapan Gambar

Transportasi

Stasiun Jurang Mangu ~3 km

Pendidikan

Sekolah Dasar Alam Bintaro ~4 km

Pasar/Mall

Bintaro Jaya Xchange Mall ~3 km

Rumah Sakit

Ichsan Medical Centre Hospital Bintaro ~3 km

*Disclaimer : Analisa merupakan estimasi dari bank data yang ada di finding.id. Perbedaan nilai dari hasil analisa mungkin saja terjadi dengan kondisi sesungguhnya dikarenakan keterbatasan data dan perhitungan yang digunakan

Simulasi Perhitungan KPR

Nama Produk Rate Jangka Waktu Cicilan
Griya iB Hasanah 7.04% 10 tahun Rp. 10,14 jt/bulan
KPR HSBC 7.77% 10 tahun Rp. 10,57 jt/bulan
DBS Home Loan 8.00% 10 tahun Rp. 10,71 jt/bulan

*Disclaimer : Perhitungan menggunakan flat rate. Hasil perhitungan bisa saja terjadi karena perbedaan rate bank yang sesungguhnya dan metode perhitungan cicilan yang digunakan


Untuk informasi selengkapnya silahkan kunjungi situs dari penjual

Belum cocok dengan rumah yang satu ini? Tenang... Anda bisa memilih rumah yang lain dengan mengklik tombol di bawah ini

Mau pasang iklan properti di finding.id? Gratis, mudah, cepat dan tanpa registrasi. Dapatkan fasilitas featured iklan selama satu hari gratis. Iklan akan muncul di halaman pertama di sesuai dengan lokasi. Klik tombol dibawah ini

Most Recent

2,5 M

Harga Special! Rumah Asri Di Bsd, Luas 162m² Lb 288m²

Luas Bangunan : 288 m2
Luas Tanah : 162 m2
Kamar Tidur : 4

3,2 M

Rumah Minimalis Yg Siyap Huni Di Sektor 4, bintaro Jaya

Luas Bangunan : 250 m2
Luas Tanah : 3 m2
Kamar Tidur : 3

4,3 M

Rumah Bagus Siyap Huni Sektor7, District Bintaro Jaya

Luas Bangunan : 250 m2
Luas Tanah : 4 m2
Kamar Tidur : 4

1,04 M

Rumah Minimalis 10 Menit Ke Stasiun Serpong 1 Lt Hadap Utara J-16381

Luas Bangunan : 72 m2
Luas Tanah : 2 m2
Kamar Tidur : 2

560 jt

Rumah 1 Lt Terawat 15 Mnt Ke Terminal Pondok Cabe Hadap Timur J-37127

Luas Bangunan : 64 m2
Luas Tanah : 1 m2
Kamar Tidur : 1