Take Over Rumah, BU ! Lokasi Strategis.

sumber : https://www.dekoruma.com/properti/cilodong-depok-rumah-1-lantai-luas-oleh-bekti-dwi-nursetyo-cLFUtOai7F

Dijual rumah istimewa dengan alamat di Depok, Jawa Barat seharga 760 jt. Spesifikasi rumah sebagai berikut :

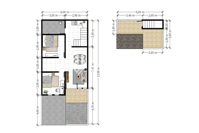
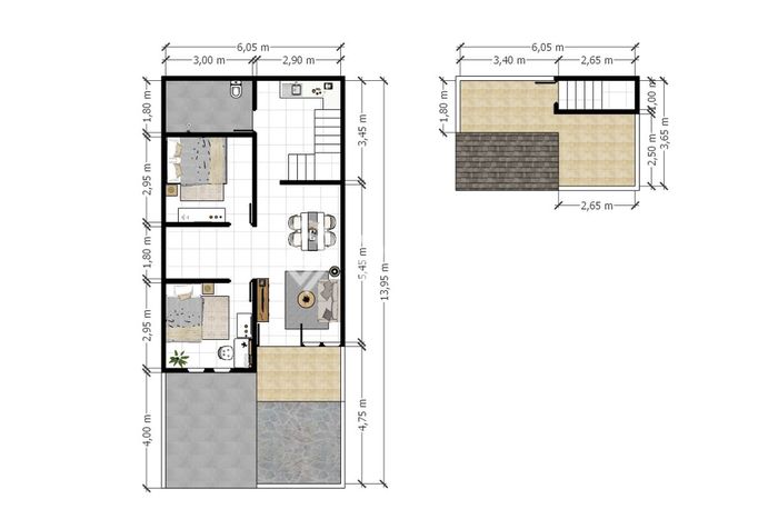
  • Luas Bangunan : 60
  • Luas Tanah : 90
  • Jumlah Kamar Tidur : 0
  • Jumlah Kamar Mandi : 0

Tips Cari Rumah KPR
Cara Membeli Rumah Seken Menggunakan KPR
Cara Mendesain Rumah Impian Sendiri

Analisa rating properti oleh finding.id

Rata-rata (satu area) Nilai properti ini Rating
Harga per m2 Rp. 8,98 jt Rp. 5,07 jt
Kelengkapan data
Kelengkapan gambar/foto
Nama Fasilitas Jarak (km) Rating
Fasilitas transportasi Stasiun Pondok Cina ~1 km
Pusat perbelanjaan atau Pasar Dmall Depok ~4 km
Fasilitas pendidikan SMPN 9 Kota Depok ~2 km
Fasilitas kesehatan Hermina Depok General Hospital ~3 km

Harga/m2

(rata-rata Rp. 8,98 jt)
Rp. 5,07 jt

Kelengkapan Data

Kelengkapan Gambar

Transportasi

Stasiun Pondok Cina ~1 km

Pendidikan

SMPN 9 Kota Depok ~2 km

Pasar/Mall

Dmall Depok ~4 km

Rumah Sakit

Hermina Depok General Hospital ~3 km

*Disclaimer : Analisa merupakan estimasi dari bank data yang ada di finding.id. Perbedaan nilai dari hasil analisa mungkin saja terjadi dengan kondisi sesungguhnya dikarenakan keterbatasan data dan perhitungan yang digunakan

Simulasi Perhitungan KPR

Nama Produk Rate Jangka Waktu Cicilan
Griya iB Hasanah 7.04% 10 tahun Rp. 7,55 jt/bulan
KPR HSBC 7.77% 10 tahun Rp. 7,88 jt/bulan
DBS Home Loan 8.00% 10 tahun Rp. 7,98 jt/bulan

*Disclaimer : Perhitungan menggunakan flat rate. Hasil perhitungan bisa saja terjadi karena perbedaan rate bank yang sesungguhnya dan metode perhitungan cicilan yang digunakan


Untuk informasi selengkapnya silahkan kunjungi situs dari penjual

Belum cocok dengan rumah yang satu ini? Tenang... Anda bisa memilih rumah yang lain dengan mengklik tombol di bawah ini

Mau pasang iklan properti di finding.id? Gratis, mudah, cepat dan tanpa registrasi. Dapatkan fasilitas featured iklan selama satu hari gratis. Iklan akan muncul di halaman pertama di sesuai dengan lokasi. Klik tombol dibawah ini

Most Recent

650 jt

Rumah Bebas Banjir 15 Mnt Ke Rs Citra Arafiq Sawangan Bisa Kpr J-31833

Luas Bangunan : 45 m2
Luas Tanah : 1 m2
Kamar Tidur : 2

610 jt

Rumah Shm 2 Carport 5 Menit Ke Terminal Sawangan Dibantu Kpr J-31716

Luas Bangunan : 45 m2
Luas Tanah : 1 m2
Kamar Tidur : 2

3 M

Dijual Rumah Cocok Untuk Usaha Di Perumahan Bogor Asri Nanggewer.

Luas Bangunan : 433 m2
Luas Tanah : 4 m2
Kamar Tidur : 7

4,1 M

Investasi Cerdas! Rumah Exclusive Pangkalan Jati, Depok, Lt 118m² Lb 250m²

Luas Bangunan : 250 m2
Luas Tanah : 118 m2
Kamar Tidur : 4

3,8 M

Rumah Nyaman Di Bojong Sari, Depok, Luas 144m² Lb 215m²

Luas Bangunan : 215 m2
Luas Tanah : 144 m2
Kamar Tidur : 4